【インダストリアルデザイン×無垢】共働き夫婦がこだわった家事がしやすい家
3LDK
二階建て
木造
愛知県 岡崎市
サーラ住宅株式会社
サーラ住宅株式会社
#サーラ住宅
#子育て
#家事ラク
#収納充実
#中庭
#テラス
#吹抜け
#インダストリアル
#寄棟屋根
#子育て
#家事ラク
#収納充実
#中庭
#テラス
#吹抜け
#インダストリアル
#寄棟屋根
| 2000~2500万円 | |
| 2017/06/09 | |
| 40~50坪 | |
| 30~35坪 | |
| 注文住宅 | |
| 耐震・免震・制震,高気密・高断熱,自由設計,長期優良住宅,デザイン住宅,性能重視,家事ラク,子育て,収納充実 |
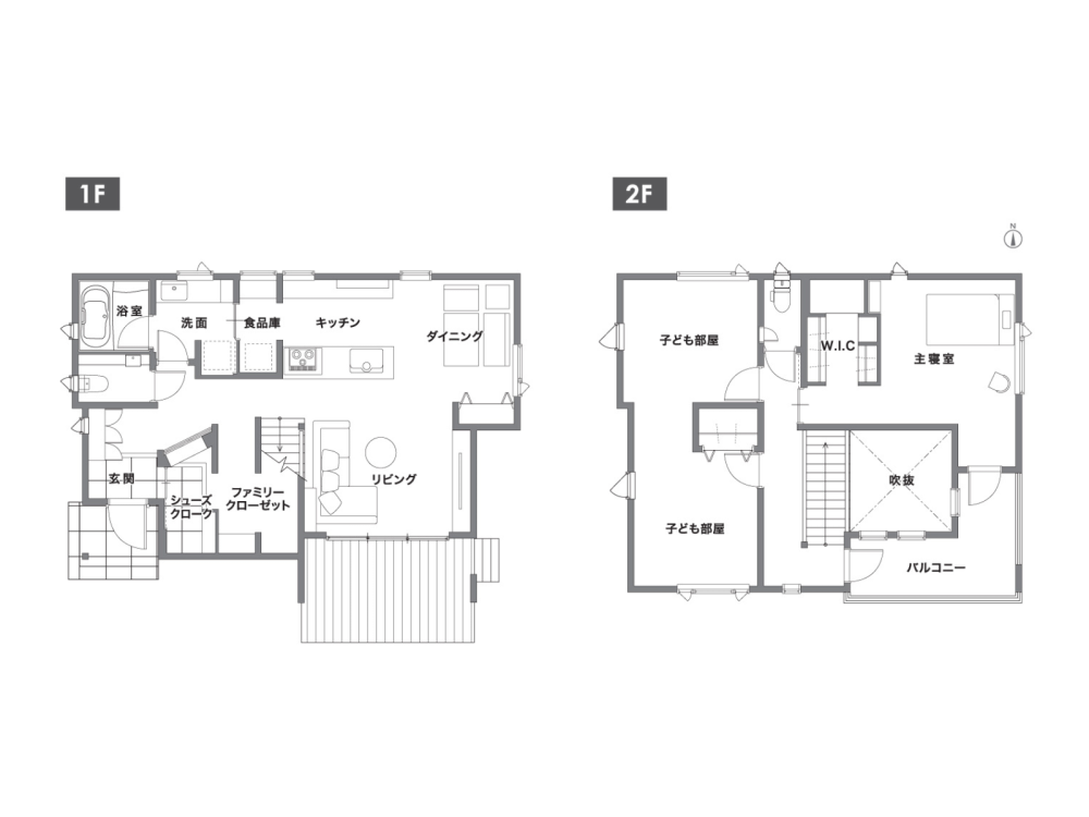
「一日のほとんどを過ごすからこそ、LDKにはこだわりました。最初にキッチンのスタイルを決めて、それに合わせてLDK全体のデザインや間取りを考えていきました」。スタイリッシュなキッチンを中心に、リビング・ダイニングが進られることなく広がる。
リビング階段とつながる吹抜けや室内と段差のないウッドデッキが、奥行きのある立体的な空間を創造し、ここちよい開放感を与えてくれている。並行して料理や洗濯、掃除のしやすい無駄のない家事動線や、リビングにモノを持ちこまないよう配置された玄関脇のクロークは、空間にも時間にも“ゆとり”を生み出す、ご夫婦ならではのアイデアだ。そうした豊かな発想は、街に溶けこむ佇まいにも活かされている。
「広々とした印象にしたくて、寄せ棟屋根の幻配を緩やかにしました。夏の暑さが最上階に伝わらないか心配でしたが、サーラの家は断熱がしっかりしているので安心です」とご主人。
リビング階段とつながる吹抜けや室内と段差のないウッドデッキが、奥行きのある立体的な空間を創造し、ここちよい開放感を与えてくれている。並行して料理や洗濯、掃除のしやすい無駄のない家事動線や、リビングにモノを持ちこまないよう配置された玄関脇のクロークは、空間にも時間にも“ゆとり”を生み出す、ご夫婦ならではのアイデアだ。そうした豊かな発想は、街に溶けこむ佇まいにも活かされている。
「広々とした印象にしたくて、寄せ棟屋根の幻配を緩やかにしました。夏の暑さが最上階に伝わらないか心配でしたが、サーラの家は断熱がしっかりしているので安心です」とご主人。
住宅のオーナー
この住宅の担当者
『住宅のデザイン、機能性両立可能です。』
良い住宅とはデザインがよく機能性が高く長く愛せるものだと考えています。【綺麗なもの】【愛せるもの】には必ずその裏付けである理由と拘りが存在しそれを表現したものが綺麗にみえます。
迷っているプランニングを私の能力で綺麗なものに致します。